В каждом доме, квартире или офисе сантехника играет важнейшую роль. От бесперебойной работы водопровода и канализации зависит комфорт и уют, а любые неполадки могут быстро превратиться в серьезную проблему, требующую немедленного решения. Если вы столкнулись с необходимостью проведения сантехнических работ в Минске, важно выбрать надежную компанию, предлагающую качественные услуги по разумным расценкам.

Почему важно выбирать профессионалов для сантехнических работ?
Многие считают, что мелкий ремонт сантехники можно выполнить самостоятельно. Однако, кажущаяся простота часто скрывает множество нюансов и рисков. Неправильно установленная труба, некачественное соединение или неверно подобранный материал могут привести к протечкам, затоплениям и, как следствие, к дорогостоящему ремонту не только вашей квартиры, но и квартир соседей.
Привлечение квалифицированных мастеров гарантирует высококачественное исполнение задач, использование надежных материалов и строгое соблюдение всех строительных стандартов и правил. Кроме того, опытные сантехники оперативно и безошибочно определят причину поломки и предложат наиболее эффективный способ ее устранения.

Сантехнические услуги в Минске: полный спектр работ
Наша компания предоставляет разнообразный спектр сантехнических услуг в Минске, от разработки проекта и установки до наладки и технического обслуживания сантехнического оборудования. Мы обслуживаем как частных клиентов, так и корпоративных заказчиков, находя индивидуальный подход к каждому.
Установка и замена сантехнических приборов:
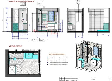
Монтаж и замена унитазов, умывальников, ванн, душевых кабин, кранов.
Установка систем подачи воды и отвода стоков.
Подключение стиральных машин и посудомоек.
Установка водогрейных приборов (бойлеров) и систем очистки воды.
Ремонт сантехнических приборов:
Устранение течей и засоров.
Ремонт и замена трубных коммуникаций.
Ремонт и замена смесителей и водопроводных кранов.
Ремонт и обслуживание водонагревателей.
Прокладка и монтаж трубопроводов:
Монтаж новых трубопроводных сетей.
Замена устаревших труб на современные полипропиленовые или металлопластиковые.
Разводка труб в ванной комнате, санузле и кухне.

Цены на сантехнические услуги: понятность и доступность
Мы осознаем, что цена услуг является решающим моментом для многих заказчиков при выборе сантехника. Поэтому мы предлагаем понятный и конкурентоспособный прейскурант на сантехнические работы в Минске.
|
Вид услуг |
Ед.изм. |
Стоимость |
|
|
1. |
Утепление стен и потолков на лоджиях, оконных и дверных откосов (Isover, Ursa, Paroc, Rockwool, Полиплекс) |
м², м.п |
от 40 рублей |
|
2. |
Монтаж вентиляционных коробов |
помещение |
от 150 рублей |
|
3. |
САНТЕХНИЧЕСКИЕ РАБОТЫ (ЧЕРНОВЫЕ), ВОДОПРОВОД, КАНАЛИЗАЦИЯ |
||
|
- |
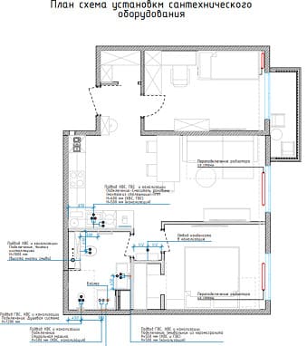
Монтаж сантехнической точки ХВС, ГВС, канализации. |
шт. |
от 70 рублей |
|
- |
Смещение (перенос) счетчика учета воды (ХВС, ГВС) без замены запорной арматуры. |
шт. |
от 90 рублей |
| - | Замена крана шарового перед счетчиком. | шт. | 50 рублей |
| - | Установка обратного клапана | шт. | 70 рублей |
| - | Установка регулятора давления | шт. | 80 рублей |
| - | Установка магистрального фильтра тонкой очистки воды (от механических примесей) | шт. | 100 рублей |
| - | Сборка и установка внутренней части смесителя скрытого типа. Примечание: монтаж сантехнических точек ХВС, ГВС с прокладкой труб от внутренней части смесителя скрытого типа оплачивается отдельно | шт. | 200 рублей |
| - | Смещение (перенос) труб для подключения полотенцесушителя, с устройством байпаса (перемычки). Примечание: навеска и подключение полотенцесушителя на готовые выводы оплачивается отдельно на этапе установки сантехнической посуды и оборудования | шт. | 300 рублей |
| - | Монтаж инсталляции для навесного унитаза | шт. | 150 рублей |
| - | Установка душевого лотка (трапа). | шт. | 100 рублей |
| - | Установка насоса для принудительной канализации с прокладкой канализационных труб d40 к стояку d110. | шт. | 900 рублей |
| - | Смещение (перенос) труб для подключения радиатора отопления (с заменой кранов, опрессовкой системы). | шт. | 330 рублей |
| - | Демонтаж труб (заглушка выводов) для подключения радиатора отопления (с опрессовкой системы). | шт. | 150 рублей |
| - | Навеска и подключение радиатора отопления. | шт. | 40 рублей |
| - | Демонтаж + обратный монтаж радиатора отопления (для выполнения отделочных работ по стенам за радиаторами). Примечание: выполняется на этапе чистовых отделочных работ, без переноса, демонтажа выводов на радиатор. | шт. | 65 рублей |
| - | Шумоизоляция канализационного стояка d110 до 3 м листами клеевой шумоизоляции. | комплекс | 160 рублей |
| - | Разборка канализационного стояка d110 для опуска/замены крестовины, либо замены самого стояка. | шт. | 160 рублей |
| - | Сборка канализационного стояка d110 после опуска/замены крестовины либо устройство нового стояка, в том числе бесшумного системы Ostendorf Skolan Safe 17 дБ(А). | шт. | 200 рублей |
| - | Штрабление стен, пола для прокладки труб водоснабжения, канализации, отопления | шт. | 40 рублей |
| - | Установка чугунной/стальной/акриловой ванны (с подключением к канализации и усилением для неподвижности кирпичом, блоком). | шт. | 160 рублей |
| - | Установка навесного унитаза на инсталляцию и подключение кнопки смыва. | шт. | 150 рублей |
| - | Установка смесителя с душевой стойкой. | шт. | 130 рублей |
| - | Установка лицевой части смесителя скрытого типа с лейкой для душа. | шт. | 160 рублей |
| - | Установка умывальника в/на готовую конструкцию (столешницу, тумбу) с подключением смесителя и сифона. | шт. | 150 рублей |
| - | Сборка и установка тумбы. | шт. | 110 рублей |
| - | Установка стеклянной шторки на ванну | шт. | 250 рублей |
| - | Навеска и подключение полотенцесушителя | шт. | 120 рублей |
| - | Навеска и подключение накопительного водонагревателя | шт. | 180 рублей |
| - | Установка кранов угловых, шаровых с чашками | шт. | 45 рублей |
|
4. |
Монтаж карниза: |
||
|
- |
простой |
шт. |
от 20 рублей |
|
- |
сборный |
шт. |
от 30 рублей |
|
5. |
Монтаж жалюзей, рольштор и т.п. |
шт. |
от 20 рублей |
| 6. | Монтаж потолочного карниза (плинтуса, багета) высотой до 120 мм с отделкой стыков | м.п. | от 30 рублей |
| 7. | Монтаж потолочного карниза (плинтуса, багета) высотой от 120 мм до 150 мм с отделкой стыков | м.п. | от 40 рублей |
| 8. | Покраска потолочного карниза (плинтуса, багета) | м.п. | от 9 рублей |
| 9. | Монтаж декоративного молдинга на стены с отделкой стыков | м.п. | от 40 рублей |
| 10. | Покраска декоративного молдинга в 2 слоя в цвет стены | м.п. | от 9 рублей |
| 11. | Монтаж декоративных панелей | м2 | от 140 рублей |
| 12. | Монтаж зашивки сантехнических коммуникаций из гипсокартона на металлическом каркасе в 1 слой на высоту помещения с усилением (креплением бруса к стойкам). | м.п. | от 150 рублей |
| 13. | Изготовление из гипсокартона на металлическом каркасе, либо из газосиликатных блоков прямого одноуровневого экрана под ванну. Примечание: считается как изделие, стоимость с уступом для ног, нишей под подсветку, другое – цена договорная. | шт. | 140 рублей |
| 14. | Изготовление короба и зашивка инсталляции гипсокартоном в 2 слоя. | шт. | 130 рублей |
| 15. | Установка люка-невидимки под плитку. | шт. | 100 рублей |
| 16. | Устройство компенсационного шва на стыке напольных покрытий | м.п. | 35 рублей |
На нашем сайте вы можете ознакомиться с ориентировочными ценами на основные виды работ. Следует учитывать, что итоговая стоимость зависит от сложности работ, объема, используемых материалов и прочих факторов. Для получения точной сметы на сантехнические работы рекомендуем пригласить нашего специалиста на объект. Выезд специалиста для оценки объема работ и составления сметы, как правило, осуществляется бесплатно или по фиксированной стоимости, которую мы заранее согласовываем.

Расценки на сантехнические работы: от чего они зависят?
При определении стоимости сантехнических услуг мы принимаем во внимание ряд ключевых аспектов:
Прежде всего, на цену влияет сложность задачи. Простое задание, например, установка нового унитаза, обойдется дешевле, чем, допустим, полная замена водопроводной сети в квартире. Также важна стоимость используемых материалов. Мы отдаем предпочтение только проверенным поставщикам и высококачественным компонентам, что обеспечивает длительный срок службы и надежность всех выполненных работ.
Конечно, объем работ напрямую влияет на итоговую сумму. Однако, для масштабных проектов мы всегда готовы предложить выгодные скидки. Квалификация нашего персонала – еще один фактор. Наши сантехники обладают высокой квалификацией и богатым опытом, что гарантирует безупречное выполнение любой задачи. Срочные вызовы, требующие немедленного прибытия специалиста, как правило, оцениваются выше.

Наши преимущества:
Богатый опыт и профессионализм: Мы успешно работаем на рынке сантехнических услуг в Минске на протяжении многих лет.
Безупречное качество: Мы гарантируем высокое качество всех наших работ и используем только проверенные материалы.
Честные цены: Мы предлагаем прозрачные и конкурентоспособные расценки на все виды сантехнических услуг.
Быстрый выезд: Мы оперативно реагируем на каждый вызов и стараемся как можно скорее устранить возникшие проблемы.
Гарантия качества: На все наши работы предоставляется гарантия.
Персонализированный подход: Мы внимательно относимся к каждому клиенту и предлагаем решения, максимально соответствующие его потребностям и бюджету.

Как воспользоваться нашими сантехническими услугами в Минске?
Чтобы заказать сантехнические работы, просто позвоните нам или оставьте заявку на сайте. Наши консультанты ответят на все ваши вопросы и помогут подобрать оптимальный вариант. Мы дорожим каждым клиентом и стремимся предоставлять услуги высокого уровня по разумным ценам. Обратитесь к нам, и вы не пожалеете!
Работы по укладке плитки:
- Облицовка плиткой
- Декоративный камень
- Укладка плитки
- ОБЛИЦОВОЧНЫЕ РАБОТЫ
- Ремонт туалета
- Бесшовная укладка плитки на стены и пол
- Укладка керамогранита на стены и пол
- Ремонт ванной комнаты
- Укладка плитки – как не допустить ошибок
- Укладка декоративного и натурального камня на стены
- Кабинет в квартире
Всё про демонтажные работы и что с этим связано вы можете почитать по ссылкам:
- Демонтажные работы в квартире
- Алмазная резка в квартире
- Фотографии демонтажных работ в квартире
- ДЕМОНТАЖНЫЕ РАБОТЫ
- РЕЗКА ПРОЁМОВ (без стоимости металлоукрепления)
- СНОС СТЕН И ПЕРЕГОРОДОК
- Демонтируемые перегородки
- Алмазная резка бетонных и кирпичных стен
- Объединение и разграничение
- Перенос дверного проёма
Читайте статьи по возведение перегородок в квартирах:
Перегородки из керамзитобетона
ПЛОТНИЦКИЕ, КАМЕННЫЕ И БЕТОННЫЕ РАБОТЫ
Монтаж межкомнатных перегородок из гипсокартона
Кладка стен в Минске: профессиональный ремонт от А до Я
Кладка перегородок и стен в квартире: монтаж и возведение
Статьи по звукоизоляции и шумоизоляции:
Звукоизоляция и шумоизоляция в квартире
Бескаркасная звукоизоляция стен
Обшивка выравнивание стен гипсокартоном с звукоизоляцией и без
Всё про оклейку обоями:
Комбинированная поклейка обоев в два уровня
Оклейка обоями стен потолков под покраску и их покраска
Оклейка обоями стен потолков под покраску и их покраска в два и более цвета
Оклейка текстильными обоями стен и потолков
Оклейка фотообоями стен и потолков
Оклейка обоями шелкография стен и потолков
Поклейка велюровых обоев на стены и потолок
Поклейка пробковых обоев на стены и потолок
Поклейка флизелиновых обоев на стены и потолок
Поклейка бумажных обоев на стены и потолок
Обойные работы основные нюансы
Потолок: клеить обои или красить
Всё про работы с гипсокартоном:
- Работы с гипсокартоном
- МОНТАЖНЫЕ РАБОТЫ ГИПСОКАРТОН
- Преимущества и недостатки гипсокартонных конструкций.
- Подвесные потолки
- Монтаж двухуровневого или фигурного радиусного подвесного потолка из гипсокартона
- Арки, полуарки, ниши и другие декоративных конструкций из гипсокартона
- Подвесной потолок из гипсокартона в один уровень
- Монтаж межкомнатных перегородок из гипсокартона
- Обшивка выравнивание стен гипсокартоном с звукоизоляцией и без
- Монтаж выравнивание оконных откосов гипсокартоном
- Потолок из гипсокартона под ключ
- Потолки
Читайте всё про укладку и настил пола:
Правильный настил и укладка линолеума
Правильный настил и укладка ламината на пол и стену
Правильный настил и укладка паркетной доски
Правильный настил и укладка пробкового пола и пробковых покрытий
Читайте всё про шпаклёвку:
Подготовка потолков под покраску
Качественная шпаклёвка стен потолков под покраску
Качественная подготовка и покраска потолка
Подготовка и покраска оконных и дверных откосов
Подготовка оконных, потолочных, стеновых и дверных откосов под обои и покраску
Отделка оконных и дверных откосов
Всё про электромонтажные работы:
Электромонтажные работы: Галерея выполненных проектов
Электромонтажные работы: Электрощиты - Фотогалерея
Прайс лист на резку штроб в бетоне, кирпиче в Минске
Цены на электромонтажные работы, электрик Минск
Штробление стен под электропроводку
Замена и ремонт электропроводки в квартире
Электрик - Электромонтажные работы под ключ
Как сделать проводку с запасом мощности
Планируем правильно розетки и выключатели
Электрика в новостройке: профессиональный монтаж от А до Я
Электромонтажные работы для умных розеток и выключателей
Разводка электрики в Минске: профессиональный монтаж под ключ
Профессиональный монтаж электрики в Минске - Качественно и безопасно!
Электрика в панельном доме: профессиональный монтаж и замена
Всё про штукатурные работы:
Качественная штукатурка стен по маякам